09 80 87 53 28 ou
38 Rue Roger Vailland 01500 Ambérieu-En-Bugey

MAISON INDIVIDUELLE DE 180 m2 ENTIEREMENT RENOVEE SUR 961 m2 DE TERRAIN, Hors Lotissement


< Retour

Partager sur

gallery loader
Exclusivité

Maison 180 m² - 7 Pièces - Ambérieu-En-Bugey 384 800


Description de l'offre Ref 371 A


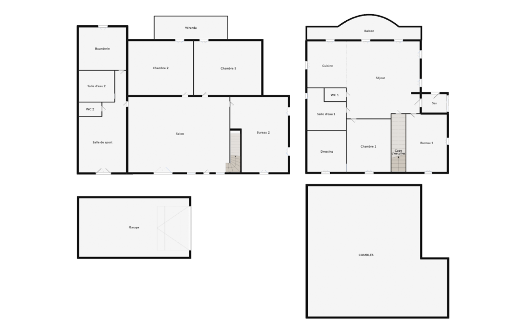
EN EXCLUSIVITE A 2 minutes du centre-ville d'Ambérieu-en-Bugey, Je vous propose cette Maison Individuelle d'environ 180 m2 habitable entièrement rénovée en 2023, elle se compose :Au rdc :Un grand séjour, une pièce (actuellement utilisée en salle de sport, mais pouvant être aménagée en cuisine), 2 grandes chambres avec placard, bureau, toilette, salle d'eau, buanderie.Au 1er étage :Cuisine équipée ouverte sur séjour-salon, une grande chambre avec dressing, un bureau, toilette, une belle salle d'eau.- Le bien est raccordé à la Fibre- Chauffage gaz de ville- Triple vitrage PVC avec volets roulants- Isolation mur périphériques et grenier refait- Garage en annexe- LoggiaMatériaux et prestations de grandes qualitésL'ensemble sur une parcelle de terrain plat, piscinable de 920 m2 …hors lotissement Il est aussi divisible et constructible (zone UA du PLU de la commune)Idéal pour un projet familial, ou pour un investisseurPour plus d'informations, précisions, visites, contactez moi au 06 79 57 38 24 ou par mail : david.ribeiro.01.immobilier@gmail.comLes informations sur les risques auxquels ce bien est exposé sont disponibles sur le site Géorisques '. Retrouvez tous nos biens sur le site : SAS DR Immobilier au capital de 1 000 EUR - RCS BOURG EN BRESSE 852 277 458 Carte professionnelle no : CPI 0101 2019 000 041 864

Diagnostics de performance énergétique


DPE
DPE

Montant estimé des dépenses annuelles d'énergie pour un usage standard est compris entre 1 740 € et 2 410 € . Prix moyens des énergies indexés sur les années 2021, 2022 et 2023 (abonnements compris).

Descriptif du bien


Code postal 01500


Surface habitable (m²) 180 m²


surface terrain 961 m²


Surface loi Carrez (m²) 180 m²


Nombre de chambre(s) 4


Nombre de pièces 7


Nombre de niveaux 1


Vue dégagée ville


Nb de salle d'eau 2


Cuisine AMERICAINE


Type de cuisine EQUIPEE


Mode de chauffage Gaz de ville


Type de chauffage TRAD_TYPE_CHAUFF_CHAUDIERE


Format de chauffage Individuel


Terrasse NON


Nombre de garage 1


Nombre de parking 3


Exposition EST-OUEST


Année de construction 1960


Terrain piscinable OUI


Terrain arboré NON


Copropriété NON


plan de sauvegarde NON


Prix de vente honoraires TTC inclus 384 800 €


Taxe foncière annuelle 1 750 €


Cette annonce vous intéresse ?


* Champs obligatoires

* : Les informations recueillies sur ce formulaire sont enregistrées dans un fichier informatisé par La Boite Immo agissant comme Sous-traitant du traitement pour la gestion de la clientèle/prospects de l'Agence / du Réseau qui reste Responsable du Traitement de vos Données personnelles. La base légale du traitement repose sur l'intérêt légitime de l'Agence / du Réseau. Elles sont conservées jusqu'à demande de suppression et sont destinées à l'Agence / au Réseau. Conformément à la loi « informatique et libertés », vous disposez des droits d’accès, de rectification, d’effacement, d’opposition, de limitation et de portabilité de vos données. Vous pouvez retirer votre consentement à tout moment en contactant directement l’Agence / Le Réseau. Consultez le site https://cnil.fr/fr pour plus d’informations sur vos droits. Si vous estimez, après avoir contacté l'Agence / le Réseau, que vos droits « Informatique et Libertés » ne sont pas respectés, vous pouvez adresser une réclamation à la CNIL. Nous vous informons de l’existence de la liste d'opposition au démarchage téléphonique « Bloctel », sur laquelle vous pouvez vous inscrire ici : https://www.bloctel.gouv.fr Dans le cadre de la protection des Données personnelles, nous vous invitons à ne pas inscrire de Données sensibles dans le champ de saisie libre.
Ce site est protégé par reCAPTCHA, les Politiques de Confidentialité et les Conditions d'Utilisation de Google s'appliquent.